Calculette
Contactez-nous
Nice
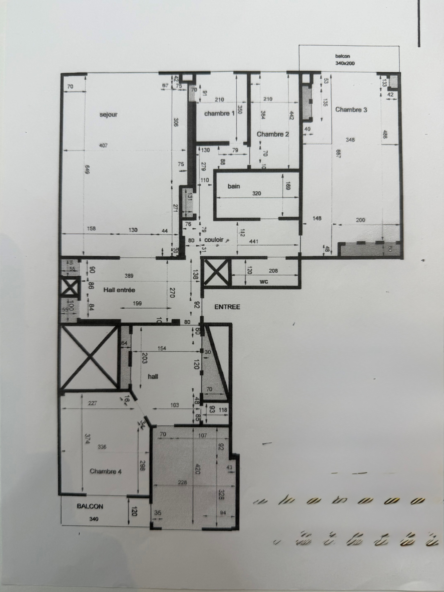
Grand 5 pièces à réinventer – Standing et emplacement premium
- Infos bien immobilier
- Code postal : 06000
- Superficie (m²) : 118,31 m²
- Surface loi Carrez (m²) : 118,31 m²
- Nombre de chambre(s) : 4
- Nombre de pièces : 5
- Etage : 3
- Ascenseur : OUI
- détails
- Nb de salle de bains : 1
- Nb de salle d'eau : 1
- Mode de chauffage : Gaz
- Type de chauffage : Radiateur
- Format de chauffage : Collectif
- Balcon : OUI
- Terrasse : OUI
- Cave : OUI
- Surface cave (m²) : 10
- Exposition : EST-OUEST
- Année de construction : 1957
- Informations de copropriété
- Copropriété : OUI
- Lot n° : 34
- nombre de lots : 44
- Quote Part annuelle des charges : 3 300 €
- plan de sauvegarde : NON
- statut du syndic : pas de procédure en cours
- Infos Financières
- Prix de vente : 650 000 €
- Les honoraires d'agence seront intégralement à la charge du vendeur :
- Charges : 275 €
- Taxe foncière annuelle : 2 200 €
Réf: AP.AV.3587
Détails de l'offre
Nice – Boulevard Gambetta. Dans une résidence très recherchée , à deux pas de la mer, du tramway et des commerces, découvrez un appartement rare : un vaste 5 pièces traversant Est/Ouest de 118 m² Loi Carrez (124,5 m² au sol), lumineux du matin au soir, avec une terrasse de 7 m² et deux balcons de 3,90 m² et 4,20 m². Réunis aujourd’hui mais d’origine deux lots distincts, le bien offre un potentiel exceptionnel : grande vie familiale ou possibilité de redivision en deux appartements (profession libérale, investissement, double projet). Il comprend un séjour ouvrant sur un balcon exposé EST, une cuisine indépendante, quatre chambres dont certaines avec extérieur, une salle de bains, une salle d’eau et de nombreux rangements. Une grande cave de 10 m² en sous-sol complète ce bien. Des travaux sont à prévoir, mais se projeter ici est une évidence : volumes, lumière, extérieurs, standing, emplacement… tout s’y prête pour créer un lieu de vie d’exception. On aime particulièrement la traversée Est/Ouest, la proximité immédiate des plages et la liberté d’aménagement offerte par ces surfaces rares dans le quartier. Copropriété 44 lots charges annuelles 3300€ pas de procédure en cours contactez M MISTRETTA pour planifier une visite au 06.99.74.00.17. « Les informations sur les risques auxquels ce bien est exposé sont disponibles sur le site Géorisques : www.georisques.gouv.fr »
